- NEUBAU
- Referencia
- Venta
- Estado
- Terreno urbano
- Tipo
- 255.00
- m²
- 3
- Dormitorios
- 2
- Baños
- sin garaje
- Garajes
- 1966
- Año de construcción
Descripción
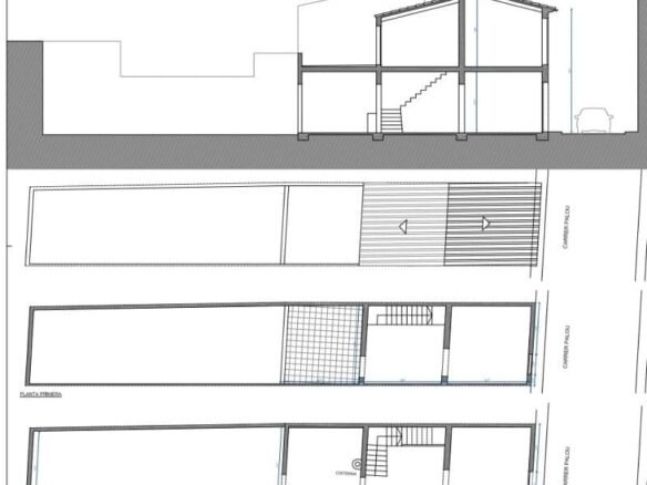
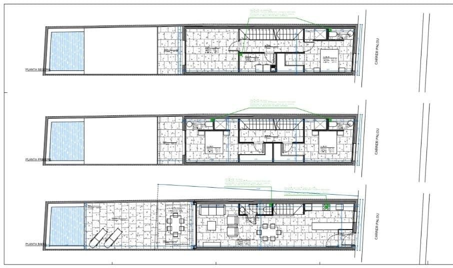
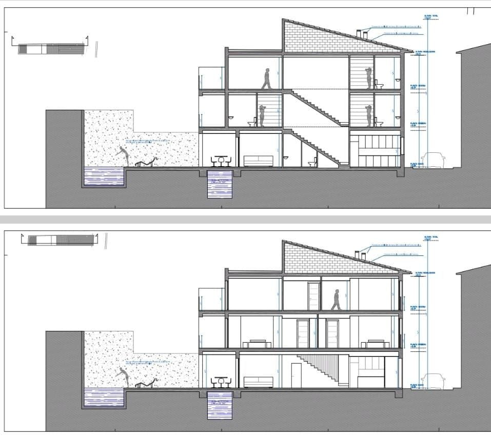
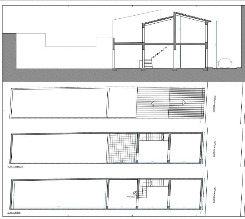
Solar con el proyecto y licencia concedida...Solar en venta con el siguiente proyecto: En la planta baja hay una cocina, comedor y salón con la salida al patio con la terraza con piscina.La escalera de cristal lleva a la primera planta con dos dormitorios dobles con sus baños. Un dormitorio tendrá salida al porche. En la tercera planta hay un dormitorio con el baño en-suite, cuarto técnico, cuarto de lavadora y una habitación polifuncional (apta para un gimnasio, cuarto de trabajo, juegos etc). La casa tiene.el suelo radiante, aire acondicionado, será auto-suficiente. Todavía se puede modificar la distribución y añadir los detalles a su gusto. La calle es tranquila con poco trafico y a pocos minutos del centro de Sa Pobla..
Caracteristicas
